To κλιματικό σπίτι του φωτός στην Ισπανία!
Με μία εκπληκτική θέα πάνω από τη Μεσόγειο Θάλασσα
Στη δεκαετία του '50, στην Ισπανία υπήρχε μια διαδικασία αστικοποίησης των ακτών της Μεσογείου, όπου έχτισαν τις υποδομές, τα ξενοδοχεία και τα σπίτια διακοπών που προορίζονται για χρήση. Αυτό το μικρό ρετιρέ είναι μέρος αυτής της εξέλιξης: Το Finca Adoc, ένα σύμπλεγμα περίπου 2.000 σπίτια που αναπτύχθηκε από ιδιώτες επιχειρηματίες το 1960, στην ακτή Αλικάντε.
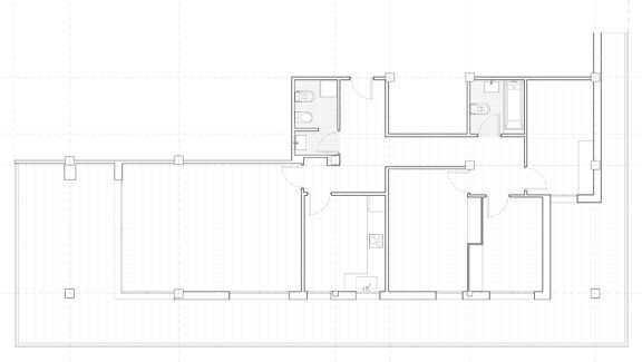
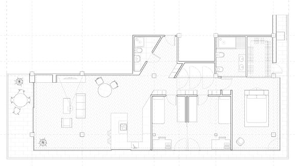
Σε αυτό το σύμπλεγμα- πολυκατοικία υπάρχει κοντά μια σιδηροδρομική γραμμή με χώρο στάθμευσης, πολλά καταστήματα, εσωτερική θερμαινόμενη πισίνα και πολλές πεζογέφυρες, κλιμακοστάσια και ανελκυστήρες, με σκοπό να συνδεθούν τα διάφορα επίπεδα των κτιρίων με την παραλία, το λιμάνι και τη θάλασσα. Όλες αυτές οι προηγμένες, για την εποχή τους, λύσεις μηχανικής, επιβαλλόταν να γίνουν λόγω των απότομων κλίσεων ανάμεσα στη θάλασσα και την Serra Grossa. Τα περισσότερα σπίτια που χτίζονται στην Ισπανία, πλέον δεν είναι παρά αποκαταστάσεις των υπαρχόντων κτιρίων. Είναι πλέον συχνό φαινόμενο τα διαμερίσματα διακοπών, πολλά με θέα στη θάλασσα, να γίνονται κύριες κατοικίες, με φυσική συνέπεια να βελτιώνονται και τα αναγκαία μέσα μαζικής μεταφοράς με υποδομές, όπως το ΤΡΑΜ. Η μεσογειακή πόλη χάνει τα όρια της και παράλληλα συνδέεται με τη θάλασσα. Αυτό είναι το πλαίσιο που για τους αρχιτέκτονες κατευθύνει την αποκατάσταση αυτού του ρετιρέ που βρίσκεται σε έναν πύργο στην παραλία της Albufereta.
Η εκπληκτική θέα πάνω από τη Μεσόγειο Θάλασσα και την πόλη Αλικάντε με τον απέραντο ορίζοντα να εκτίνεται μακριά επιτυγχάνεται με τη χρήση στρατηγικών όπως η επέκταση του εσωτερικού χώρου, την ένωση της κουζίνας με το καθιστικό, διαίρεση δωματίων με χωρίσματα και επέκταση των αποθηκευτικών χώρων. Εκτός από διαφάνεια και ευελιξία, αυτό το αυτοματοποιημένο κτίριο μπορεί να αναπρογραμματίσει του χώρους. Τα ευφυή Θερμοϋγρομετρικά συστήματα κλιματισμού, τα στρώματα υψηλής ακουστικής απορρόφησης, οι συρόμενες πόρτες-τοίχοι, οι εγκαταστάσεις φωτισμού και το σύστημα surround επιτρέπουν την προσαρμογή σε διαφορετικές χρήσεις ανάλογα με τις ανάγκες. Στόχος των αρχιτεκτόνων ήταν να δημιουργήσουν ένα τροποποιήσιμο σπίτι για ένα νεαρό ζευγάρι από το οποίο θα μπορούσαν να βλέπουν τη θάλασσα, και να ζουν τις μεταβολές του περιβάλλοντος φωτισμού από την ακτή. Κάπως προσπαθούν να επιτρέψουν το εκτυφλωτικό φως, μαζί με τον άνεμο και τα κύματανα γίνουν κομμάτι του σπιτιού τους.
Αρχιτέκτονες: Cor & Asociados
Φωτογραφίες: David Frutos, David Sardana και Luisa Marti
Διαβάστε ακόμη:
Απίστευτο: Μέσα στο λόφο κρύβεται μια υπερσύγχρονη βίλα
Μια βίλα «εξέδρα» στην Ibiza!

